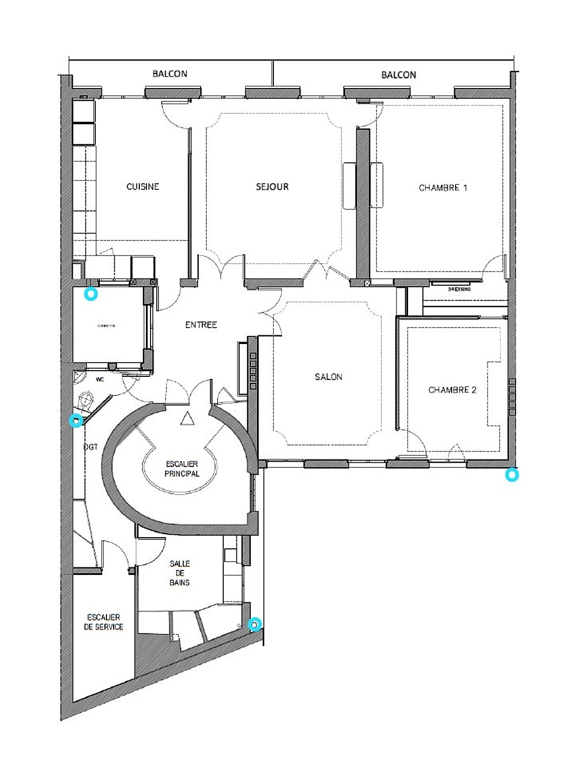
6ème (Jardin du Luxembourg) - 105 m² au 5ème étage
Prix : *
1 750 000 €
Prix/m² :
16 667 €/m²
Surface :
104,78 m2
Chambres :
3
Immeuble :
Pierre de Taille
Etage :
5ème / 6
Quartier :
Jardin du Luxembourg
Métro :



DPE :
1 750 000 €
16 667 €/m²
104,78 m2
3
Pierre de Taille
5ème / 6
Jardin du Luxembourg
Idéalement placé, ce 5e étage avec balcon filant se situe entre l’Eglise Saint-Germain, le Jardin du Luxembourg et le Bon Marché. L’immeuble est en pierre de taille et bénéficie d’un ascenseur. Cet appartement traversant d'environ 105 m² est baigné de soleil ; son balcon filant est orienté au sud. Il se compose d'une entrée, d'un bel espace de réception traversant avec vues dégagées, de deux chambres spacieuses avec vue dégagée sur jardin (possibilité d'en faire 3), d'une salle de bains (possibilité d'en faire 2) et d'une cuisine familiale. Ce bien rare à la vente a conservé tous ses attributs d’origine : parquets en point de Hongrie, élégantes cheminées et moulures raffinées. Immeuble bien entretenu avec gardienne, une seule porte par palier — Une cave et une chambre de service avec vue dégagée compètent cette offre.