16ème (rue Pierre Guérin) - 84 m² au 2ème étage

Prix : *

Sur demande

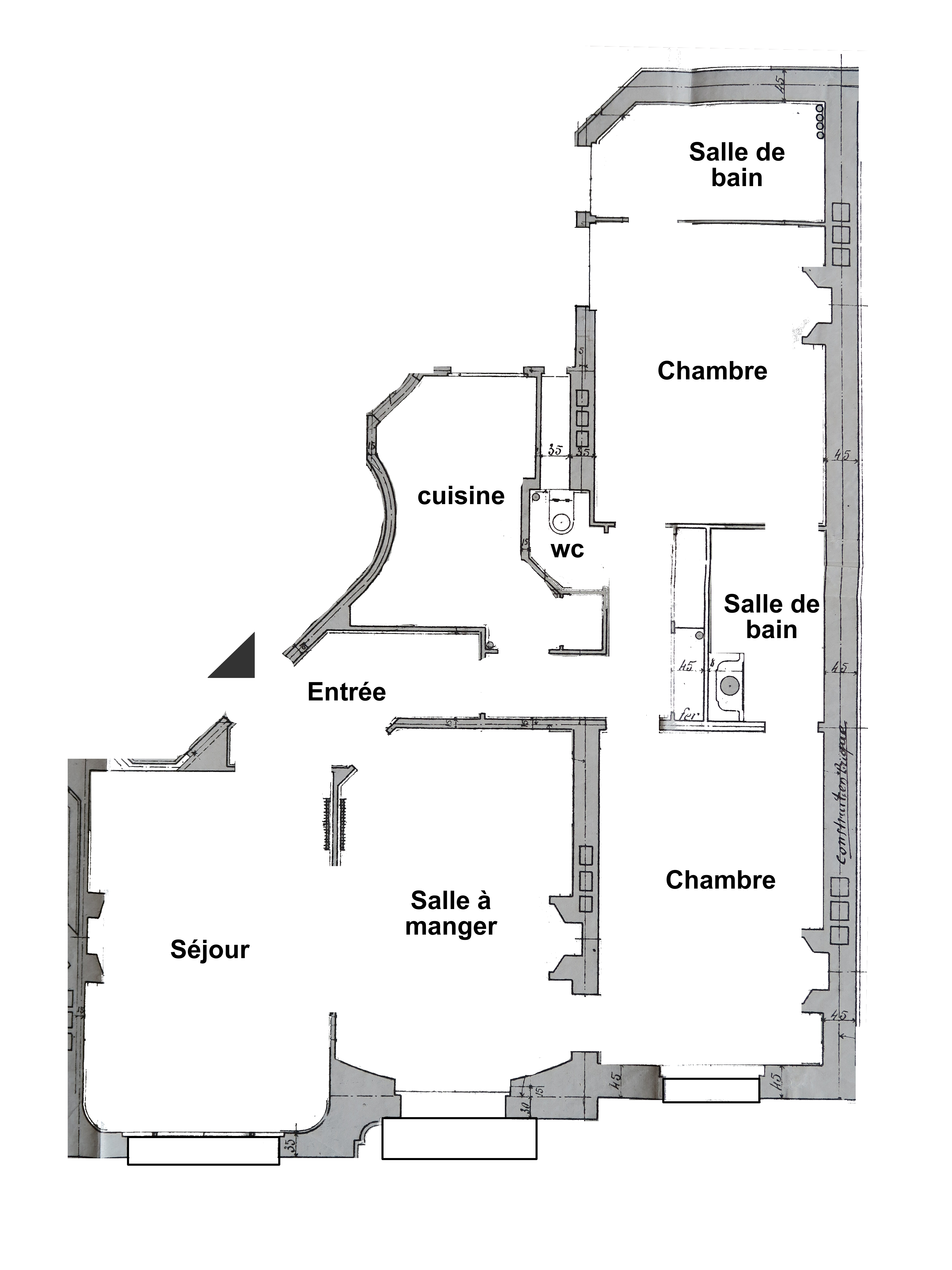
Surface :

83,38 m2

Chambres :

2

Immeuble :

Pierre de Taille

Etage :

2ème / 5

Quartier :

rue Pierre Guérin

Métro :
ligne 9 Michel-Ange-Auteuil
ligne 10 Michel-Ange-Auteuil
ligne 9 Jasmin
DPE :

Rue Pierre Guérin / Bosio - Immeuble haussmannien de standing - 2ème etg ascenseur - Au calme, plein soleil avec dégagements - Appartement de 4 pièces composé d'un double séjour (35m²) sur rue (parquet/moulures/cheminées/Hauteur sous plafond 3.2m) avec portes fenêtres sur balcon, 2 grandes chambres de 14m², 2 salles de bains, cuisine sur cours - nombreux rangements - cave, digicode, gardien - immeuble de standing très bien entretenu - Emplacement recherché